Rustico in vendita

Roncofreddo, Via G. da Vernano
€ 25.000
Prezzo aggiornato
3 locali 3 locali
76 Mq 76 Mq
1 bagno 1 bagno

Rustico in vendita

Roncofreddo, Via G. da Vernano

Descrizione annuncio

- RONCOFREDDO -

Nel cuore del paese e adiacente alle scuole, è disponibile questa casa libera su tre lati.

Essa è totalmente da ristrutturare, in modo da personalizzare interni e godendo delle detrazioni fiscali per la riqualificazione energetica.

E' già presente un progetto di ristrutturazione, da cui trarre idee o attuare nella sua interezza.

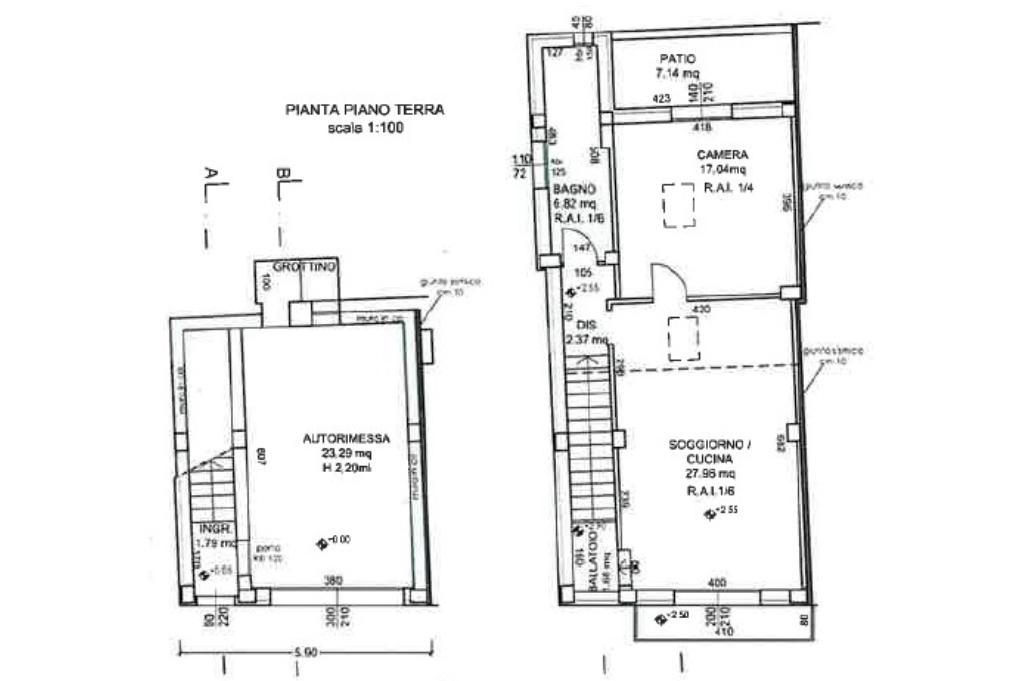
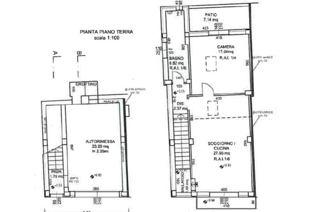
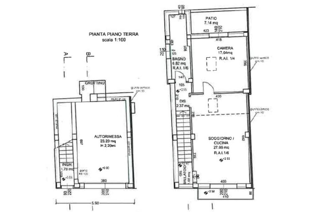
La casa è distribuita su due piani: al piano terra troviamo il garage privato di 33mq, mentre al piano primo si sviluppa il bilocale.

Infatti la zona abitativa è costituita da soggiorno con angolo cottura: l'ambiente rimane arioso e luminoso, grazie alla porta-finestra che si apre sul balcone; nella zona notte è presente una camera matrimoniale ed il bagno finestrato.

Questa soluzione è adatta per coloro che amano personalizzare spazie e finiture, in contesti tranquilli e riservati.

RIF: FRANCESCO FERRI

VAI ALLA SEZIONE ^MAPPE SENSIBILI^, CLICCANDO SULLE MACCHINE FOTOGRAFICHE POTRAI VISUALIZZARE LE FOTO E LA DISPOSIZIONE DEGLI AMBIENTI.

+++ Siamo presenti su FACEBOOK e INSTAGRAM: segui ^GRUPPO TECNOCASA GAMBETTOLA^ per rimanere aggiornato sulle ultime novità immobiliari! +++

Mostra tutto

Nelle vicinanze

Trasporto pubblico Trasporto pubblico
Trasporto pubblico
2,9 Km
Ristoranti Ristoranti
Agriturismo Il Cucco
2,4 Km
il Gallo Nero
2,8 Km
Mostra tutto

Caratteristiche

Rif.:
61144512
Piano:
Terra di 2
Totale piani:
2
Box:
1
Balconi:
1
Camere da letto:
2
Mostra tutto
Prezzo Prezzo
€ 25.000
Rata mutuo Rata mutuo
€ 118 / mese
Spese annue Spese annue
€ 0
Proponi il tuo prezzoProponi il tuo prezzo

Classe Energetica

Questo immobile è esente da classe energetica
Anno di costruzione:
1900
Riscaldamento:
Assente

Prezzo ridotto di €1 (33%%)

Ti interessa visionare l'immobile?

Fissa un appuntamento  Fissa un appuntamento

Richiedi informazioni

Clicca su Leggi per aprire l'informativa
* Questi campi sono obbligatori

Calcola il tuo mutuo

Semplice e senza impegno
Anticipo

( % )
Mutuo

( % )

pochi semplici passi

inserisci i tuoi dati
Questionario completato
Grazie per aver richiesto un appuntamento senza impegno con un nostro Consulente del Credito e Assicurativo.

Hai inserito correttamente tutti i dati necessari e a breve riceverai una e-mail con un link da convalidare per inviare i tuoi dati.
Affiliato
Studio Mazzini Snc
Corso Mazzini, 27 47035 Gambettola (FC)

Il nostro staff


  • Simone Ostolani
    Affiliato

  • Erik Abbondanza
    Affiliato

  • Francesco Ferri
    Collaboratore

  • Georgia Giusino
    Coordinatrice

  • Alessandro Arcangeli
    Collaboratore

  • Alberto Ridolfi
    Collaboratore
Corso Mazzini, 27 47035 Gambettola (FC)
Zona: Gambettola-Longiano-Sant'Angelo di Gatteo-Roncofreddo-Montiano-Bulgarnò
Mostra su mappa
Orari: Dal lunedì al venerdì 09:00-13:00 15:30-20:00, il sabato 09:00-13:00
Affiliato
Studio Mazzini Snc
Corso Mazzini, 27 47035 Gambettola (FC)

2026 Tecnocasa Franchising S.p.A. - P. IVA 08365160152 - Via Monte Bianco 60/A 20089 Rozzano (MI). Ogni agenzia ha un proprio titolare ed è autonoma. Privacy policy | Policy utilizzo | Cookie policy